
Am Schloss Charlottenburg
Klassischer Gründerzeitbau trifft auf modernen Wohnkomfort
Das Wichtigste auf einen Blick

Adresse
Schustehrusstraße 28, 10585 Berlin
Typ
charmante Altbauwohnungen & historische Remise
Fläche
25 – 146 m²
Einheiten
20 Wohn- und eine Gewerbeeinheiten sowie eine Remise
Baujahr
ca. 1900
Kaufpreis
Ab 189.000 €
Einladende wohnungen
Klassischer Gründerzeitbau trifft auf modernen Wohnkomfort

Highlights
Altbaustilelemente
Stuckverzierungen & Fischgrätparkett
ruhige Lage
vis-a-vis Schustehrusspark
begrünter Innenhof
mit historischer Remise
einladende Altbauwohnungen
zur Selbstnutzung oder Kapitalanlage
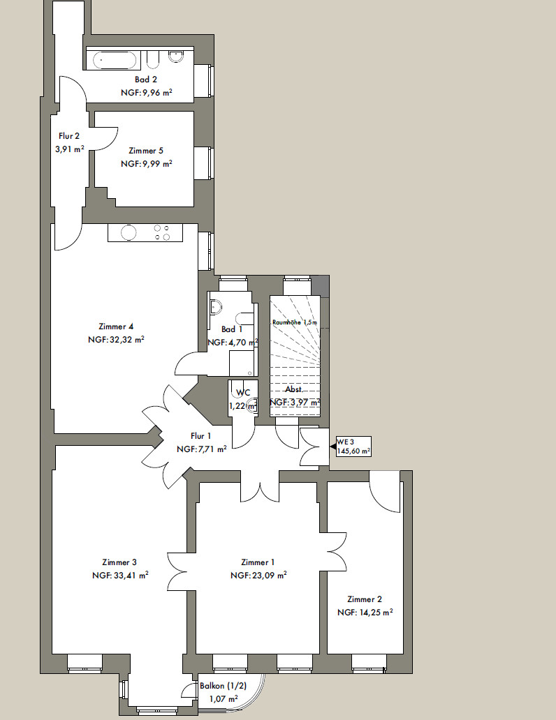
Grundrisse und Exposes
Schustehrusstraße 28
Gediegene Urbanität
gepaart mit
ausgezeichneter Infrastruktur.

Kontakt
Ihr Ansprechpartner