
Das Wichtigste auf einen Blick

Adresse
Herbststraße 14 & 16/ Sommerstraße 8, 13409 Berlin
Typ
Renovierte Wohnungen
Fläche
39 – 220 m²
Einheiten
33 Wohn- und zwei Gewerbeeinheiten
Baujahr
ca. 1907 & 1999
Kaufpreis
Ab 179.000 €
Sanierte wohnungen
Ein Haus mit Geschichte – und Zukunft:
Das eindrucksvolle Gebäudeensemble
vereint den zeitlosen Charme der Jahrhundertwende
mit dem modernen Anspruch
an komfortables Wohnen.
.

Highlights
Historisches Ensemble von 1907
charakterstarkes Eckhaus in ruhiger Seitenstraße, erweitert um einen Neubau 1999
Ruhige Lage mit grünem Innenhof
professionell geplanter Hofbereich – ideal zum Entspannen & Begegnen
Gebäuderenovierung 2025
frisch gestaltete Treppenhäuser & neuer Fassadenanstrich – stilvoll & hochwertig
Renovierte Wohnungen
mit Balkonen
Für Selbstnutzer & Kapitalanleger
bezugsfreie sowie vermietete Einheiten verfügbar
Komfortable Aufzugsanlage Herbsttsraße 14 –
bequemer Zugang zu allen Etagen
Grundrisse und Exposes
| Einheit | Fläche | Kaufpreis | Exposé | Typ | Lage | Zimmer | Status | Grundriss |
|---|---|---|---|---|---|---|---|---|
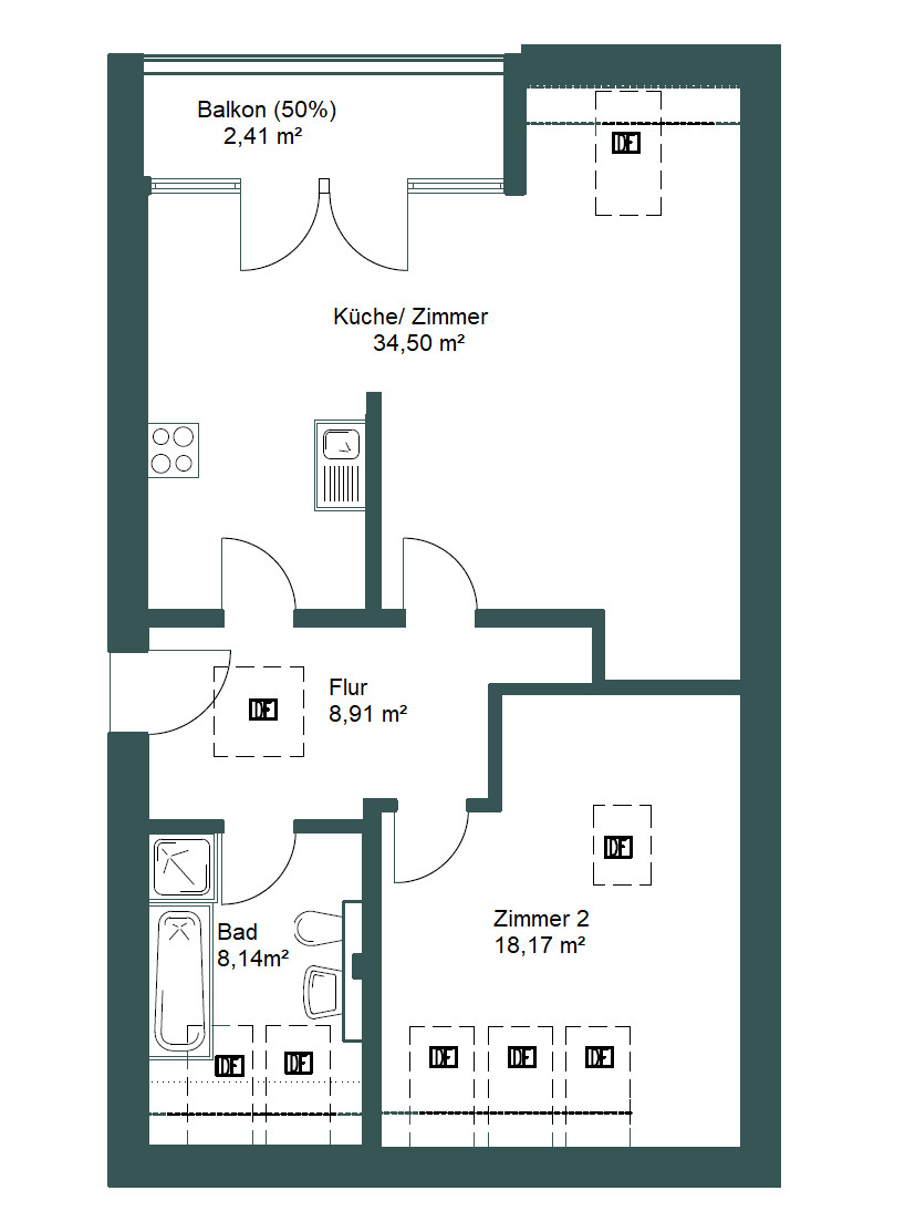
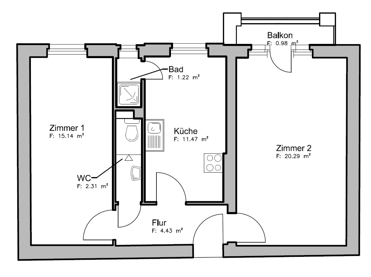
| 17 | 70 m² | 319.000 € | Wohnung | 2.OG links | 2 | verfügbar | – | |
| 09 | 70 m² | 329.000 € | Wohnung | VH 3.OG li | 2 | verfügbar |
| Einheit | Typ | Lage | Zimmer | Fläche | Status | Kaufpreis | Grundriss | Exposé |
|---|---|---|---|---|---|---|---|---|
| 17 | Wohnung | 2.OG links | 2 | 70 m² | verfügbar | 319.000 € | – | |
| 09 | Wohnung | VH 3.OG li | 2 | 70 m² | verfügbar | 329.000 € |
Sommer-Herbststraße
Der Standort überzeugt durch Mobilität und viel Grün!

Kontakt
Ihr Ansprechpartner